ZUR PRODUKTÜBERSICHT

Varicor Waschtisch

Waschtisch aus Varicor Modell Wetset

WETSET

Modell Wetset mit Ablage

Wetset

Beschreibung Modell Wetset

Eine reine Formsache. Varicor Waschtisch WETSET, der Klassiker unter den Waschtischen überzeugt durch klare geometrische Linienführung. Und durch eine Vielzahl von Ausstattungs- und Gestaltungsmöglichkeiten. So ermöglicht die Variante "Luxus" die Integration von komfortsteigernden Funktionsausschnitten für Handtücher, WC-Papierrollenhalter oder Kosmetiktuch-Box. Die Variante "Möbel" erlaubt die paßgenaue Kombination mit Unterbaumöbeln oder bauseits gelieferten Fertigverkleidungen. Optimale Hygiene und Reinigungsmöglichkeiten durch die fugenlose Oberfläche, die hintere Aufkantung mit Hohlkehle sowie die gerundete vordere Abkantung. Zahlreiches funktionales Zubehör wie z.B. Spiegelauflageleisten oder Nischenrückwandverkleidungen aus VARICOR®. Individuelle Lösungen durch drei verschiedene Ausstattungsvarianten ("Basis", "Luxus", "Möbel").

Technische Beschreibung Wetset

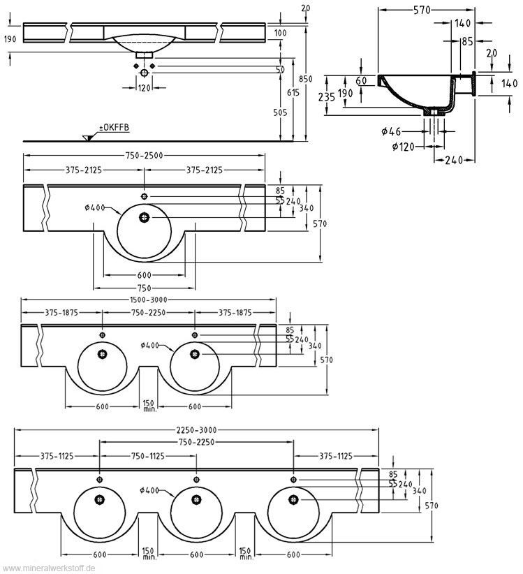
Technische Zeichnung Wetset

Mindestmaß 750 mm für Einzel-Waschtisch bzw. 1500 mm für Doppelwaschtisch

Preisliste:
Brutto-(Richt)preis von 497,00 bis 1.800,00 € zuzügl. Mwst. für den Einzel-Waschtisch
Brutto-Richtpreis von 1.106,00 bis 3.855,00 € zuzügl. Mwst. für den Doppel-Waschtisch

Ausschreibungstext Wetset

Einzel-/Doppel-/X-Fach-Waschtisch aus polymer-gebundenem Mineral-Massivwerkstoff VARICOR, homogenes, voll durchgefärbtes, porenloses Material, ohne Oberflächenversiegelung, reparabel,CE-zertifiziert³ und antibakteriell², beständig gegenüber allen gebräuchlichen Chemikalien und Desinfektionsmitteln¹, säurebeständig und hitzebeständig gegen Zigarettenglut, matt geschliffen, in einem Stück nach Maß gegossen, bauseits bearbeitbar, mit rundem Becken, Innendurchmesser 400 mm, mit Überlauf und Lochbohrung für Mischbatterie, vordere Abkantung im Beckenbereich (Mitte) 60 mm und an den seitlichen Ablageflächen 100 mm, angeformte Wischleiste mit Hohlkehle, Höhe 20 mm, mit Rückwand für Stockschraubenbefestigung.

Fabrikat: KERAMAG

Modell: WETSET

Länge: ab 750 mm (gem. baulichen Erfordernissen)

Tiefe: 340/570 mm

Befestigung: Stockschrauben, bzw.Wandauflagewinkel bei Nischeneinbau

Farbe: (bitte Farbnamen angeben PDF Farbtabelle)


Technische Zeichungen als Download: Laden Sie sich die Zeichnung als DXF oder DWG herunter

Wetset Möbel Frontblende 1

1) Desinfektionsmittelbeständigkeit:
Labortechnische Untersuchungen haben ergeben, dass VARICOR gegenüber allen gebräuchlichen Desinfektionsmitteln zur Flächen- bzw. Händedesinfektion beständig ist (aktuelle  Liste der Desinfektionsmittel-Kommission des VAH - Verbund für angewandte Hygiene e.V.)

2) Antibakteriell:
VARICOR bewirkt bei den Standard-Weißtönen eine Keimreduktion von 99,9%. Gemäß der Norm JIS-Z gilt dieses Resultat als antibakteriell.

3) CE-Zertifiziert:
VARICOR-Sanitärbecken sind CE zertifiziert und entsprechend gekennzeichnet. Ein Prüfkriterium dafür ist der Wechselwassertest von 70°C/15°C bei tausend Zyklen. Die in ihrer Beschaffenheit identischen Küchenbecken bewältigen diesen Test sogar mit 90°C/15°C ohne jede Beanstandung.
Ein weiteres Prüfkriterium ist die Reinigungsfreundlichkeit: Die Waschbecken müssen eine glatte und leicht zu reinigende Oberfläche aufweisen, die frei von scharfen Innenecken ist.

Varicor Tafelware weiß mit Materialstärke 12 mm entspricht den Vorgaben der DIN 4102-B1 Schwerentflammbarkeit und verfügt über ein offizielles  "Allgemeines bauaufsichtliches Prüfzeugnis".


ZUR PRODUKTÜBERSICHT

Pollecker Finoflex GmbH
Daniel-Eckhardt-Str. 42 | 45356 Essen | Tel: 0201 - 8 33 86 20 | Fax: 0201 - 8 34 53 20 | info@mineralwerkstoff.de

 

Varicor Logo
Pollecker Finoflex GmbH
Tel: 0201 - 8 33 86 20
Fax: 0201 - 8 34 53 20
E-Mail:info@mineralwerkstoff.de